农村轻钢别墅的优点(轻钢别墅到底适不适合农村)
农村轻钢别墅的优点(轻钢别墅到底适不适合农村)
这几年来,轻钢结构正在农村地区稳步发展向前进,抗震性能好、建造工期短、施工过程环保等都是它的优点,住宅公园也给大家分享过多套轻钢案例。
但质疑的声音也有,毕竟是新型建房结构,大家还不是特别了解。今天我们就以安徽刘女士为父母建造的这栋轻钢养老房为例,详细给大家解答轻钢结构的各类问题。

图纸:
要想建一栋轻钢房屋,村里的施工队绝对不行,必须要请专业做轻钢的工匠队伍来干活,这才放心。
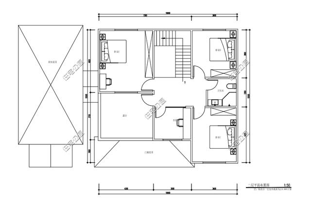
平面布局图:


建房基本信息
建房时间:2025年6月5日开工--2025年10月25日完工
建房造价:52.875万元
平米价格:2350元/平米
建筑面积:235㎡

轻钢施工:
场地清理干净后将各类构件统一堆放在一旁方便搭建,轻钢结构的【快速】与【高效】正是得益于它的建造模式。

不同于砖混与框架的现浇施工,一层一层垒砖砌墙,轻钢结构只需要在工厂里生产好需要用到的构件,再请专业师傅搭建就行了,【装配式作业】就是这么快。

基础施工完成后覆盖预制板,当做是一个小的架空层,龙骨与地面的接触部位也要是垫一层防水卷材,这样可以有效的防水隔潮。


没有繁琐的砌筑工作,也不需要现场搅拌混凝土与砂浆、绑筋、支模,减少了现场作业量;而且干性施工不受季节影响,粉尘污染降到了最低。



依次搭建到二楼,并在各类构件的结合处安装抗拔件,使其紧密连接。


屋顶搭建完成,这栋轻钢结构的房子,总算是有了雏形。

镜头一转,开始在外墙、屋面的位置安装欧松板形成蒙皮效应,起结构加强的作用。

第一步,先钉装好欧松板,使其牢固嵌合在龙骨表面;
第二步,再铺贴呼吸纸;
最后一步,钉装挤塑板,做好防水、防潮、保温,三管齐下提升房屋质量。


室内预制板安装到位,轻钢龙骨用膨胀螺栓固定好。

室内水电管线预埋,龙骨内部再填充玻璃纤维棉,最后用石膏板做封闭。

屋面沥青瓦,安装到位。
外墙欧松板,安装到位!


下图这黄色的东西,可不是咱们一般的涂料,它是墙面固化胶,能充分浸润基材表面,使基层密实,提高光滑界面的附着力。

一般墙面批腻子,不论你家墙面是水泥抹灰还是铲除以后的素墙,或者是混凝土墙面,都不可能干干净净。
这时就需要墙固进行封面处理,固定灰尘,同时可以增加墙面腻子的附着牢固度。

接下来涂刷抗碱封闭底漆,进行外墙真石漆施工。


米黄色的外墙与深蓝色的屋面搭配的恰到好处,不张扬不落俗。露台葫芦柱安装到位,采用相同色系更能凸显房子应有的质感。


室内装修:
装修整体一切从简,无需繁琐。棕红色的门窗经典大气不失传统农居风范。室内再按照自己的心思,随意摆放一些喜欢的绿植净化空气,这样一栋精巧实用的轻钢小别墅,只等拎包入住。





卫生间干湿分离,浴室做好泄水坡,再装好通风窗即可。

若是家里有老人,或是房子层数高上下爬楼太费力,也可以建个电梯方便生活。现在电梯也不贵,换来一家人生活乐无忧,这生意太赚了!



拆掉脚手架,清理好建筑垃圾,这样一栋简简单单的轻钢小别墅跃然呈现在我们眼前。
在阳光的映衬下,房屋档次十足,落地窗设计很是抢眼,在村里盖一栋这样的轻钢小别墅,保证上门参观的人络绎不绝。


排水管道放置在房屋背面,既不影响颜值,而且还方便落水,一举两得。

从6月开工到10月结束,短短4个月的工期,这栋轻钢小别墅就建好了,除了建造速度快之外,轻钢结构还有以下这些优点,值得我们自建生活。
快捷:在工厂提前生产,完成部分拼装任务,减少现场作业量,加快现场安装速度。全部干作业施工,不受季节环境影响。
运输量小:运输量小于传统建房模式,利于在运输不便的山区、岛屿等地区建造。
适用性广:适合建造于任何地基之上。
保温隔热、隔音:保温隔热效果好,16cm厚的轻钢建筑墙体相当于1m厚砖混墙体的保温隔热效果;由轻钢龙骨、保温材料石膏板组成的墙体,其隔音效果可高达60分贝。
抗地震:地震发生时会形成稳定的盒子结构,不会因为地震的摇晃而出现墙体倒塌或楼板掉下危及人身安全。


性价比如此高的轻钢别墅,你会选择建吗?

关注本号,每天都有新户型,还有乡邻晒家,建房省钱小妙招一手掌握。
,
-
- 第二次世界大战实录全集100(第二次世界大战实录11)
-
2025-11-06 15:12:54
-
- 感恩父母的十字短句小学,感恩父母的十字短句子
-
2025-11-06 15:10:39
-
- 高三激励短句唯美(高三激励短句四字)
-
2025-11-06 15:08:24
-
- 带着铃铛去做贼(带着铃铛去做贼打一个生肖)
-
2025-11-06 15:06:09
-
- 奶油质地口红什么牌子好 8大奶油质地润唇膏推荐
-
2025-11-06 15:03:54
-
- 木牛流马原理是什么(诸葛亮发明的木牛流马是什么原理?诸葛亮是如何学刘备摔
-
2025-11-06 15:01:39
-
- 茅台千君醉2008多少钱一瓶 千君醉三十年两瓶装价格
-
2025-11-06 14:59:24
-
- 没有感情的婚姻怎么处理最好(什么是没感情的婚姻)
-
2025-11-06 14:57:09
-
- 破风演员表(东风破的演员表和角色介绍)
-
2025-11-06 13:28:53
-
- 低碳环保小窍门,低碳生活小窍门都有哪些
-
2025-11-06 13:26:38
-
- 放大格局的经典语录,放大了格局的前一句是?
-
2025-11-06 13:24:23
-
- 断背山讲的什么(豆瓣评分8.8为什么15年过去)
-
2025-11-06 13:22:08
-
- 低收入家庭怎么认定?三亚最新标准公布→
-
2025-11-06 13:19:53
-
- 仫佬族的介绍
-
2025-11-06 13:17:38
-
- 扭曲的爱情观
-
2025-11-06 13:15:23
-
- 盘点《异形》十大种类,和铁血战士混血后变成了这样!
-
2025-11-06 13:13:08
-
- 大自然天然氧吧人间仙境(大美集于一身天然大氧吧)
-
2025-11-06 12:20:30
-
- 独家:他从珠江啤酒小小的业务员做到了营销总监 如今年薪近97万
-
2025-11-06 02:54:52
-
- 三星手机的发展史(上)
-
2025-11-06 02:52:37
-
- 泰州究竟是几线城市?榜单来了
-
2025-11-06 02:50:22



赵薇真实身份是日本人
男人喜欢亲你私下代表什么呢!
细讲男朋友是怎么做你的!
陈翔六点半球球被按在桌上的视频最突出的就是大胸
男生为什么会吃女生的小兔兔,小兔子被吃会觉得痛吗?
男朋友摸自己女朋友的肚子意味什么