long table酒多少钱(龙酒图片龙酒价格)
long table酒多少钱(龙酒图片龙酒价格)
long table酒多少钱?一般来说,酒的价格是由酿酒原料、生产工艺、品质等因素决定的。但是,有些葡萄酒的价格却不是由这些因素决定的,比如:有些酒是是按瓶卖的,有些酒是按瓶卖的,还有些酒是按箱卖的。今天,我们就来聊聊这些酒的价格。如果你想知道,就来看看吧。下面,我们就来看看一下,这些酒的价格。首先,我们来看一下茅台酒。茅台酒是中国白酒的代表,也是世界三大名酒之一。茅台酒的价格一般在3000元左右。
勾勾手一看世界,带你看完全世界
gogohands a look at the world, take you to see the whole world
项目名称 Project Name –Le Relais Boréale
项目地点 Location –Montréal, Québec, Canada
项目面积 Area –
完工时间 Project Year – summer 2022
▼一层平面图,first floor plan ©Atelier L’Abri
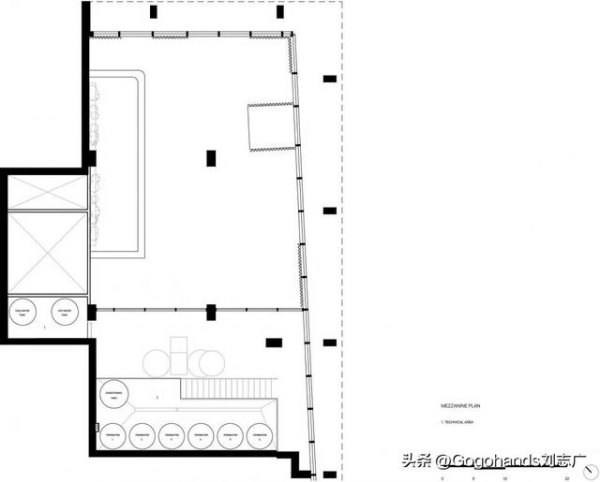
▼夹层平面图,mezzanine floor plan ©Atelier L’Abri

▼轴测图,axonometric drawing ©Atelier L’Abri
现场实景Live action
▼室内空间概览,overview of the interior ©Raphaël Thibodeau
▼由餐饮空间看向玻璃幕墙,a view from the dining space to the large oak-framed glass wall ©Raphaël Thibodeau
▼酿酒空间,the brewing space ©Raphaël Thibodeau
▼吧台,the bar ©Raphaël Thibodeau
▼吧台近景,close shot of the bar ©Raphaël Thibodeau
▼木质长桌,a long wooden table ©Raphaël Thibodeau

▼木质长桌近景,close shot of the long wooden table ©Raphaël Thibodeau
▼桌椅近景,close shot of the table and seats ©Raphaël Thibodeau
▼灯具近景,close shot of the lightings ©Raphaël Thibodeau
结 语
Le Relais Boréale位于蒙特利尔的Mile-Ex街区,是啤酒爱好者的聚会和品尝之处。本项目是魁北克小型酿酒厂先驱Les Brasseurs du Nord的归乡之作,该公司35年前在该市酿造了第一批Boréale啤酒。希望将自己的的循环酿酒方法融入本项目,这个酿酒公司请来几个街区外的L’Abri团队,设计一个突出企业生态责任和传承当地专业知识的独特场所。
Located in the Mile-Ex neighborhood of Montreal, Le Relais Boréale is a meeting and tasting place for beer lovers. This is a homecoming for Les Brasseurs du Nord, a pioneer of microbreweries in Quebec, which brewed its first Boréale beers in the city 35 years ago. Longing to transpose their circular approach into the project, they brought in the L’Abri team, based a few blocks away, to design a unique venue highlighting eco-responsibility and local know-how.
关于我们
卖|移动房制造产业游→→→→

The End
-
- 珍藏鸿运庐州老窖_庐州老窖鸿运头曲
-
2026-03-17 05:55:15
-
- 五粮液酒老酒价格表(五粮液玉酒价格表大全)
-
2026-03-17 05:53:00
-
- 潍坊绿草地啤酒好不好(潍坊绿草地啤酒价格)
-
2026-03-17 05:50:46
-
- 如何描述葡萄酒的口感(赤霞珠葡萄酒口感描述)
-
2026-03-17 05:48:32
-
- 平民酒价格(平民酱香酒)
-
2026-03-17 05:46:17
-
- 红色经典酒价格(红色经典52度酒价格表)
-
2026-03-17 05:44:03
-
- 蓝色梦幻30年价格(蓝色梦幻烟花价格)
-
2026-03-16 20:13:52
-
- 赖茅1915多少钱(衡水老白干1915多少钱)
-
2026-03-16 20:11:38
-
- 健民葡萄酒厂新建生产线答案(建民葡萄酒厂是生产葡萄酒的企业)
-
2026-03-16 20:09:23
-
- 黄鹤楼浓香型白酒52度多少钱一瓶(黄鹤楼浓香型白酒52度多少钱一瓶福满楼)
-
2026-03-16 20:07:09
-
- 52度陈酿青酒6多少钱(陈酿清酒52度价格)
-
2026-03-16 20:04:55
-
- 原浆16酒价格表(古井原浆七年酒价格表)
-
2026-03-16 20:02:40
-
- 喜佳酿五粮液52度_五粮液喜酒系列价格
-
2026-03-16 20:00:26
-
- 西凤陈酒a8(西凤52度a8市场价)
-
2026-03-16 19:58:12
-
- 葡萄酒微信(葡萄酒微信朋友圈广告语)
-
2026-03-16 19:55:57
-
- 茅台在山东(茅台山东自营店在哪)
-
2026-03-16 19:53:43
-
- 景阳春紫砂酒价格(景阳春紫砂酒38度)
-
2026-03-16 10:10:14
-
- 贵州青酒五年洞藏
-
2026-03-16 10:07:59
-
- 中国各省白酒销售排名(各省白酒产量排名)
-
2026-03-16 10:05:45
-
- 意大利干红葡萄酒品牌(意大利基安蒂干红葡萄酒)
-
2026-03-16 10:03:31



为什么教师出轨率最高(这四大职业容易造成婚内出轨)
已婚女人愿意和你拥抱代表什么
女人172身高标准体重是多少 女生身高171完美体重三围
男性为何喜欢处女?女性是否也喜欢处男呢?
大s和小s是双胞胎吗(大s和小s是双胞胎吗)
为什么女人喜欢被添 女人私处被添是什么感受
男人被冷落多久会着急?一个星期
茶黄金(茶黄金效果怎么样)
刘嘉玲被绑视频完整版(刘嘉玲被绑视频完整版)
牛剖层皮革耐磨吗 牛皮革 牛剖层革哪个更好