起死回生,荔湾广场不拆了!
起死回生,荔湾广场不拆了!
荔湾广场,保住了?
近日,广州规自局发布了《荔湾广场南塔裙楼外立面修缮工程》的公示。

文件主要针对广场的外饰进行翻调,并非此前传闻中的要整个拆除。
通过这份公示,目前可以肯定的是,曾经作为广州“都市传说”的荔湾广场,目前看不会拆,也暂时不会改名了。
可喜可贺,但这次换新能否挽救荔湾广场,甚至上下九呢?
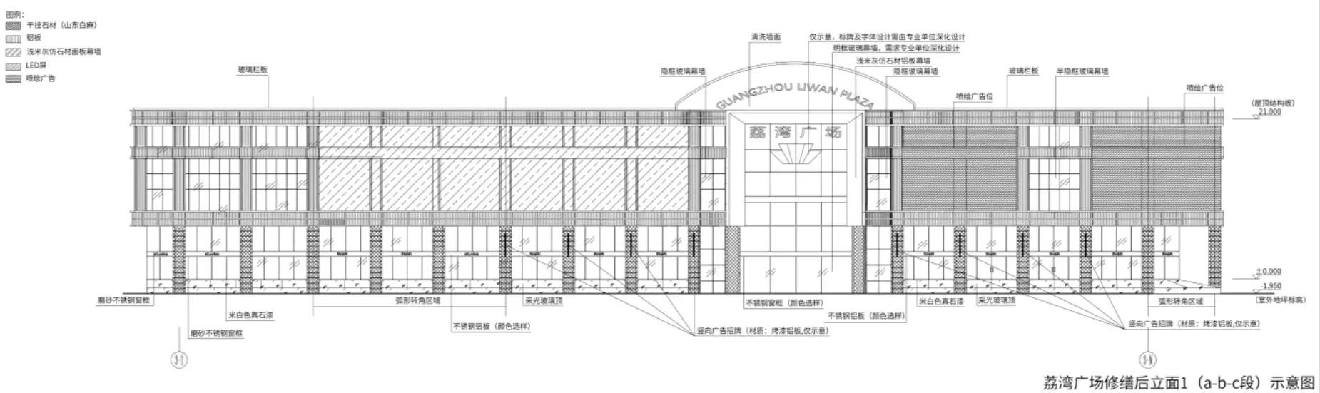
01.提升广场外立面形象但不会改名换姓
荔湾广场主要分南北塔,北塔是蓝港国际珠宝交易中心,而南塔则是大家所熟知的荔湾广场一带,同样经营珠宝玉器比较多。

根据最新公示,广场修缮主要有三个方面。
一是,广场外立面墙体采用大面积的玻璃、不锈钢铝板和米白色真石漆,代替了以往老气的传统瓷砖。

二是,针对原本压抑的屋顶,将会拆除重建为透光玻璃顶,呈现敞亮的效果。
三是,当然最受大家瞩目的,最容易看歪,想成其它东西的“荔湾广场”四个大字,也将全部重新设计。

毕竟,熟悉广州的朋友都知道,一旦提起“荔湾广场”四字,很容易会联想到曾经在这里发生过的坊间传闻和社会新闻,一度成为8090后的“童年阴影”。
事实上,早在2021年,荔湾区就曾表示,要投资近10亿,对上下九进行全面改造。
整个建设周期为60个月,其中1期提及,将拆除荔湾广场、名汇大厦等高层建筑,恢复历史风貌。
当时,荔湾广场还一度要改名为“恒万时代”,打造为直播电商基地,或许这样一个都市传说盛行的地方要做直播,引起民间热议太多,后面便不了了之。

此前前往现场时,也暂未发现有任何施工迹象。
珠宝商行仍在正常营业,运货工人进出自如,来回搬运着货物。
不过说来也是奇怪,每次走进广场里面,总感觉气氛稍显奇怪,两侧的升降电梯和屋顶的玻璃形状让人心里有点发毛。

广场一楼和二楼,属于人流量比较大的区域,商铺少有空缺,再往上走显得比较萧条了。

广场外围的餐饮商铺,就倒闭得七七八八,只剩下几家甘草水果、铁板大鱿鱼、长沙臭豆腐等店铺在运营。

虽说荔湾广场整体呈现出一种暮气沉沉的感觉,但基本没有动工拆除的迹象,很多餐饮店铺甚至贴着旺铺招租的信息。
02.背靠上下九曾是万人空巷,如今落魄至极
荔湾广场之所以引人注目,还是因为其背靠的上下九商圈。
要知道,曾经的上下九,可是万人空巷,商界的顶流。2018年国内顶级商业街排行榜,上下九名列第七,北京路则无上榜。

鼎盛时期,租金甚至去到10万+/月,依然一铺难求。

“南中国最繁华步行街之一“从神坛跌落,究其原因:
其一,商业低端,各类山寨产品集合
”addidas“变成”addidogs“,耐克鞋上标着纽拜伦的”N“,AJ一双59元,西关美食城里卖着长沙臭豆腐和油爆大鱿鱼......
想喝奶茶,到处都是“一點嘿”“垚燚一點點”,正版“一點點”看了满头大汗,基本都是来坑外地游客。

年轻人可能天真,但真的不傻。各大商圈迅速崛起,凭什么要上赶着为山寨买单,人流减少是必然的。
其二,容易踩坑,体验感奇差。
此前一段时间,说起上下九,必然少不了”断斤缺两水果摊“。
随便拿起几片西瓜,几颗油柑蓝莓,一下子要收你四五十,七八十的,按照现在说法,妥妥的水果刺客。

在这种行情下,上下九早已失去高端居住品牌的青睐,剩下的都是各种地摊货,低端产品。
沿街的低端商品和降价促销成为两侧商铺的主旋律,时至今日仍然如此。

时代滚滚向前,商圈的发展近些来也在陆续寻求突破,无论是招商还是业态重组,都取得了重大突破。譬如万博的四海城,长隆的时代芳华里,都是近些年广州商业崛起不错的案例。
可是以荔湾广场为代表的上下九,始终找不到什么突破点,没有改变,逐渐落伍。
或许广州东进南拓的脚步迈大,让更多有力竞争者出现,可作为广州历史的见证者和传承者,这里始终有别的地段无法代替的意义。
1998年,2010年,2021年,荔湾多次将上下九改造提上日程,最终都不了了之。
希望此次荔湾广场翻新换脸,能够带领上下九重回老城区商业之巅,迈出第一步吧。
下一篇:没有了
-
- 概念解读:家国同构
-
2025-10-29 13:26:40
-
- 《甄嬛传》浣碧怎么背叛甄嬛的
-
2025-10-29 13:24:25
-
- 《妃子笑》:多少女子为权势勾心斗角,最后不过一场空
-
2025-10-29 13:22:10
-
- 山西“土皇帝”陈鸿志:名下341处房产超50亿,黄河边建豪华庄园
-
2025-10-29 13:19:55
-
- 如何与双子座相处:应对善变的社交高手
-
2025-10-29 13:17:40
-
- 孙红雷被大家质疑是不是有黑社会背景。小编今天就为大家揭秘一下
-
2025-10-29 13:15:25
-
- 拿崩牙驹3000万转头翻脸不认人,洗米华的人生活该当阶下囚
-
2025-10-29 13:13:10
-
- 核工业部416医院——内江卫生系统的损失
-
2025-10-29 13:10:55
-
- 沙雕必备熊猫表情包
-
2025-10-29 13:08:40
-
- 今天是“83男人节”,祝男人们节日快乐!飞鱼带您了解这个节日
-
2025-10-29 13:06:25
-
- 美军自报的上甘岭战役战果:美军伤亡2000人,志愿军损失1.9万
-
2025-10-29 13:04:10
-
- 民国才女林徽因:才华与情感交织的传奇人生
-
2025-10-29 13:01:55
-
- 光控资本|2025股市春节休市时间安排?A股港股休市时间一览表?
-
2025-10-29 12:59:40
-
- 让人又爱又恨的富坚老贼
-
2025-10-29 12:57:25
-
- 微信里面有一个识字功能,比字典还实用,家长孩子一定要学会!
-
2025-10-29 12:55:10
-
- 54岁天后王菲近照曝光,穿深v、露锁骨,一脸疲惫确实老了许多!
-
2025-10-29 12:52:55
-
- 离婚近20年,再看戴志诚和杨蕾,已经往不同的方向走了
-
2025-10-29 12:50:40
-
- 西宁美食大揭秘!这8道高原特色菜让你一口接一口,欲罢不能!
-
2025-10-29 12:48:25
-
- 六七十年代的“赤脚医生”并不专业,为啥老百姓的评价反而很高?
-
2025-10-29 12:46:10
-
- 江苏省22位演员,谁的演技最好?你最喜欢谁?你还知道谁?
-
2025-10-29 12:38:59



中国十大黑恶县城(中国十大黑恶县城有哪些)
【石井四郎的女儿还在吗】石井四郎女儿石井春海怎么死的?
元世祖忽必烈,一个在中国历史上留下了深刻印象的人物
世界上最贵的香烟,好彩香烟(60万一盒)
中国最严格的监狱(中国最严监狱排名)
中国最穷的十大城市,排名第一的是贵阳
中国十大超穷省会城市排行榜 贵阳第一
中国“素质最差”三个省排行,国内“素质最差”省有哪些
十大抗日小说排行榜 让你热血澎湃的经典之作
中国最狠十大监狱(女子监狱怎么解决需要)