【石油科普】(2)三分钟让你了解石油钻井
【石油科普】(2)三分钟让你了解石油钻井
石油不是自动自动地下冒出来的,而是通过地质勘探,钻井,测井测试,采油等一系列程序,采用不同的设备工具经过人们多少个日夜的辛勤劳动从几公里的地下开采出来的。
石油钻井,按白话说,就是为了找石油进行的,往地面以下钻孔的活动。
就像你用电钻往墙上打洞,只不过不是打墙上,而是找块地儿,可能(根据地质大师判断)有油的地方去钻孔。
要想实现钻孔,就需要有电机,相当于石油钻井队的发动机。
一般石油钻井队主要的设备构成如下:

一般钻机示意图

钻机现场
这里边,动力机就是所谓钻机的动力来源,也就是发动机。
一,发动机
是钻井设备的主要动力源,从前是柴油机,后来为了环保节能改成了“天然气”动力,近年来有的地方研制了更节能环保的大功率电机系统,不过由于电力供应链的问题很难普及。
二,底座和转盘,
这是钻机的主要操作平台,王进喜们就是在那里通过控制手柄进行作业的。
钻井平台高度一般在十米左右,深度越深,平台越高。

操作平台

钻井平台
三,钻杆:
现代石油钻井发源于欧美,因此所有设备的标准都是来自欧美,我们今天提到的钻具也是这样。
钻杆,就是往井下输送的工具,一般长度为11米,内径1.875-3.35英寸之间。
从前,我国三千米以下钻杆基本靠进口,改开后大力引进国外技术,国产钻杆实现了飞跃,今天的钻杆已经可以满足深井钻井了。
你可能无法想象,一口油井目前可以达到一万米深度,一万米是啥概念?
就是十公里,十公里,直径几十公分的钢管,旋转起来带着扭矩,直接钻到花岗岩把它啃下来,这得多大的扭力呀!
所以,钢材,超级材质的钢材,才是现代科技的难点所在,材料工业的进步才是真正的进步。
四,钻头,
大家知道,世界上最硬的东西就是钻石,也叫金刚石,钻头使用的人造金刚石。
钻头尺寸一般在6-1/2到12-1/2英寸之间。

石油钻头:可以磨掉任何顽石的工具
五,泥浆
泥浆其实就是各种泥浆材料加水的混合物,钻井泥浆的作用主要有两条,一个是做为循环用来把井下的碎石导出来,另一个做为地层压力平衡济,防止太高的地层压力形成井喷事故。
请注意,我们看到的大多井喷失控事故都是泥浆配制出问题导致的。
啥是泥浆材料?很多,比如食盐氯化钠就是,用来增加泥浆密度的。
六,套管
随着钻孔不断加深,需要不断加固井筒防止坍塌,这就用上了套管。
表层一般井口都大,用的套管尺寸也大,比如13英寸以上的,越往下尺寸越小,比如五英寸半的。
最后,如果出了油,那就要下油管,用来把地层的油气放出来。

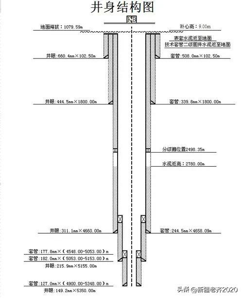
井身结构图
-
- “贾乃亮去世”的谣言来源来了
-
2025-12-10 01:59:26
-
- 什么是ETC?为什么银行都在抢占这个风口?
-
2025-12-10 01:57:11
-
- 没后台就别考选调生?
-
2025-12-10 01:54:56
-
- 爱杜丽丝是仙女杯属的经典多肉,不但好养且养成老桩后充满沧桑感
-
2025-12-10 01:52:41
-
- lifeline这首歌乐曲,给了无数人求生的希望,女孩最后的5分13秒
-
2025-12-10 01:50:26
-
- 014形容女子容颜美貌的成语
-
2025-12-10 01:48:11
-
- 《华严经》精华10句,感悟佛家智慧!
-
2025-12-10 01:45:56
-
- 中国飞鸿-95无人机:完成研发重要里程碑,或将改变未来战场态势
-
2025-12-10 01:43:41
-
- 早酥红梨,梨中之稀有品种,口感好易栽培值得推广
-
2025-12-10 01:41:26
-
- 拼婚”现象的深度探讨
-
2025-12-10 01:39:11
-
- 京A88888车主李晓华:豪车背后的传奇身份
-
2025-12-10 01:36:56
-
- 广府人的文化特色
-
2025-12-10 01:34:41
-
- 樊城之战:关羽的雄心与荆州的失落
-
2025-12-10 01:32:26
-
- 细数国内最美的足球宝贝,擦亮双眼,提前预热2022卡塔尔世界杯
-
2025-12-09 20:45:40
-
- 世界最出色的中场老妖莫德里奇,37岁依旧带领皇马驰骋欧洲赛场
-
2025-12-09 20:43:36
-
- 世界羽毛球联合会最新排行榜揭晓 国羽稳坐多项榜首?
-
2025-12-09 20:41:32
-
- 世界杯最精彩比赛之一,张继科马龙7局大战,决胜局霸王拧定胜负
-
2025-12-09 20:39:27
-
- 印度富豪花4000多万买狗,雇6个人一起照顾,世界最贵的狗身价达27亿元
-
2025-12-09 20:37:23
-
- 人类史上最强地震9.5级,世界十大地震排行
-
2025-12-09 20:35:19
-
- 2022世界杯美女球迷大盘点,你最喜欢哪位?
-
2025-12-09 20:33:14



中国十大黑恶县城(中国十大黑恶县城有哪些)
【石井四郎的女儿还在吗】石井四郎女儿石井春海怎么死的?
元世祖忽必烈,一个在中国历史上留下了深刻印象的人物
世界上最贵的香烟,好彩香烟(60万一盒)
中国最严格的监狱(中国最严监狱排名)
中国最穷的十大城市,排名第一的是贵阳
中国“素质最差”三个省排行,国内“素质最差”省有哪些
中国最狠十大监狱(女子监狱怎么解决需要)
中国十大超穷省会城市排行榜 贵阳第一
十大抗日小说排行榜 让你热血澎湃的经典之作