西安热门楼盘楼盘评测:融创时代奥城
西安热门楼盘楼盘评测:融创时代奥城
融创时代奥城
融创时代奥城,港务区关注度颇高纯新盘。
-------到底是自身的硬核实力,还是市场所致,迎来如此火热?
项目名称:融创时代奥城
【容积率】2.5
【绿化率】35%
【车位配比】1:1.39
【物业】保利物业
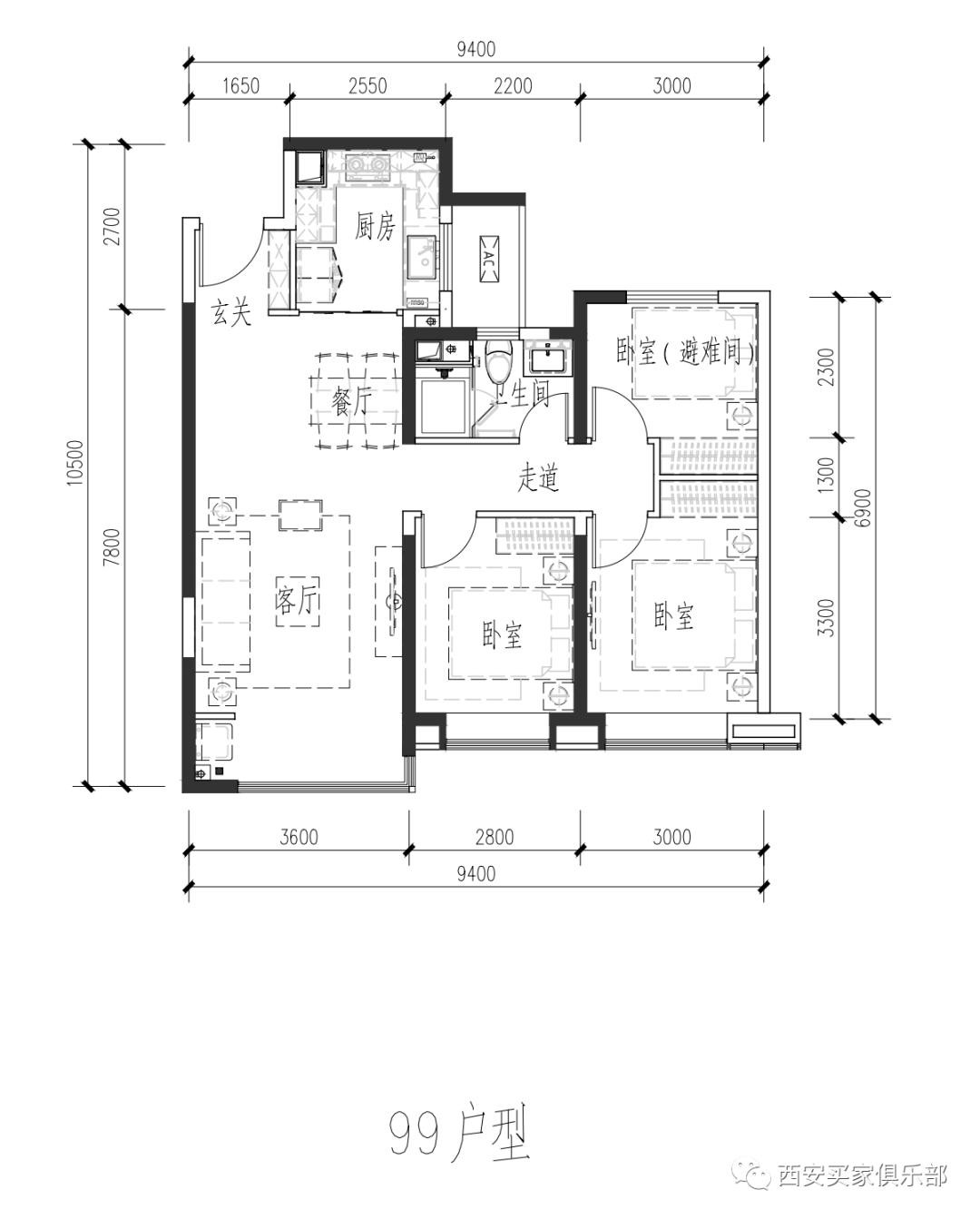
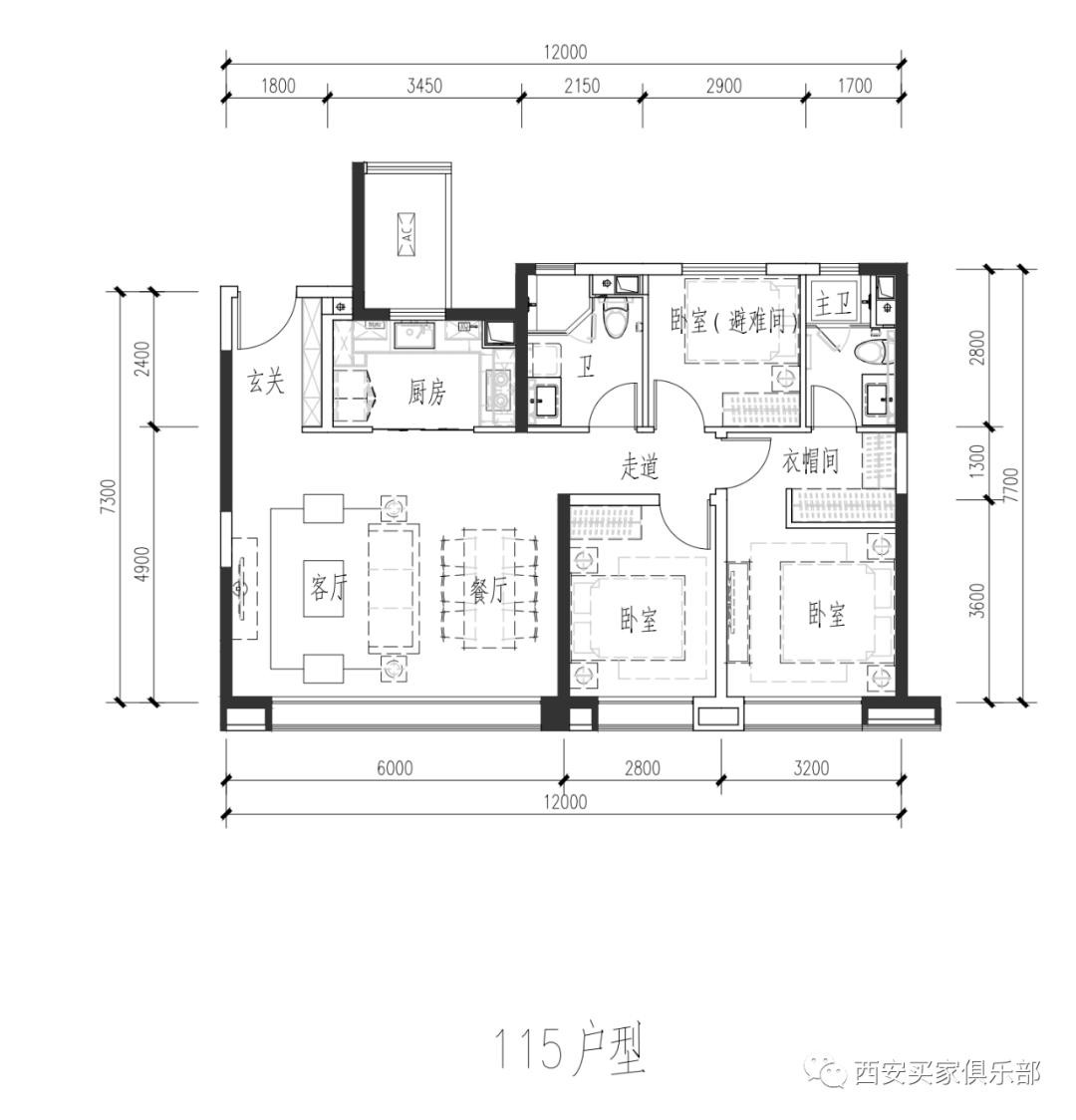
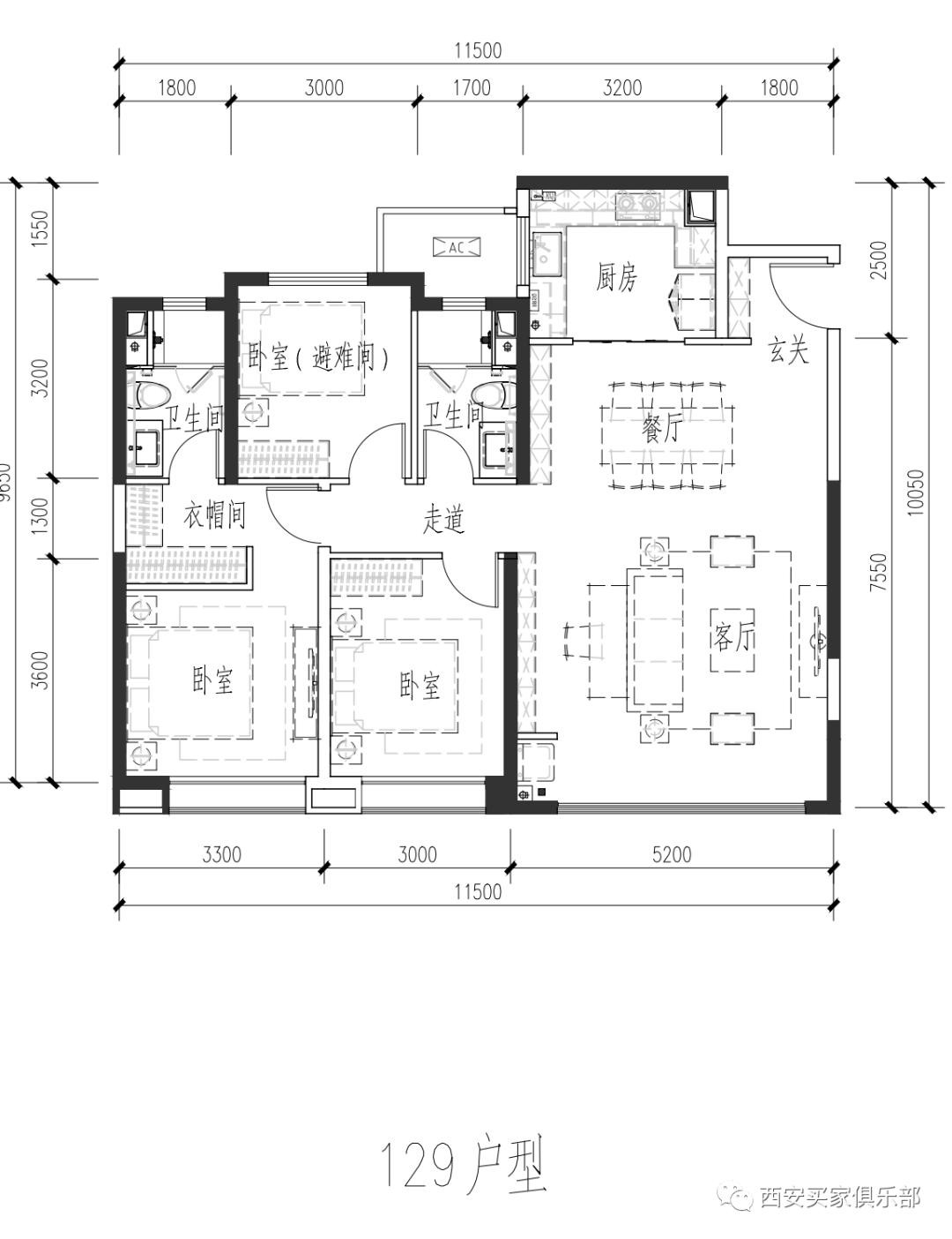
【户型】首开DK3、DK5,99平、115平、129平的两梯四户精装高层
【价格】1.3到1.4万
【项目地址】港务区管委会向西100米
项目区位与规划图



融创时代奥城首开户型图



▍地段
该项目位于港务区,奥体中心东侧约3公里左右,紧邻港务区管委会和港务大道。
项目南侧目前有华南城五金机电市场,和目前大热的十四运主会场的奥体板块还有稍许距离,看似不在当下港务区奥体板块发展的核心位置。
不过从长远规划来看,该项目紧邻港务大道,以及港务区管委会,项目东侧有融创配建的冰雪大世界,并且不断有全国性品牌开发商拿地进驻,后期有可能是港务区的品牌品质商品房扎堆区域,有可能成为港务区的核心居住区之一。
但考虑到项目目前周边现状,即使规划落地,也尚需时日,所谓地段方面,我只能打7分。
▍价格
融创的项目,通常价格不会比周边项目低。
本次备案价格遭遇了严格限价,虽然项目配建成本不低,但1.4万的备案价格,基本符合预期。
港务区奥体板块的新房高层价格,从18/19年的一万左右,到20年的1.2万左右,如今也普遍来到了1.4万左右。
周边目前无成熟的品牌二手房市场,所以价格是否有倒挂?倒挂多少?无法评估。总体说来,我认为此次备案价中规中矩,打8分。
▍交通及配套

交通方面,项目紧邻地铁14号线三义庄站,距离在500米以内,标准地铁盘。并且小区门口是双向十六车道的港务大道,出行较为方便。
教育方面,距离陕师大陆港小学距离非常近。作为港务区引进的名校+之一,群众期待较高,学校硬件不错,后期教学质量如何,尚待观察,但前景不错。
其他配套,基本零距离规划中的奥体中轴公园,以及紧邻融创自建冰雪大世界。区域内还有规划中的中粮、华润的大型商业综合体和商业步行街,星级酒店等。
总之,规划中什么都有,其中学校、地铁基本已经落地。不过其他配套资源落地后,档次究竟如何?还需要时间检验。总体,配套打7.5分。
▍品质及物业
融创,西安这几年市场声音最大的全国一线品牌开发商。一直以高端姿态示人。
项目由于限价影响,装标略有下降。不过从更为重要的方面来说,容积率2.5的情况下,做纯高层小区,虽然是刚需刚改项目,面积普遍不大,但是小区建筑密度不高,每百亩户数在刚需小区里也算优秀。
物业方面融创也是一线水平,不必担心。
综合来说,在同类小区里,品质物业应当至少为中上水准,所以打8分。
▍户型
该项目户型,中规中矩,布局合理,无明显硬伤。
项目高层整体公摊在22%到23%之间,在两梯四户高层里属于平均水平。不过项目由于是新报建项目,所以无赠送面积,也没有阳台,略有遗憾。
整体而言,该项目户型打8分。
▍租售比
本小区地属新区,周边目前一片欣欣向荣的工地景象,人口导入尚需时日,目前出租市场还不成熟。
后期人口逐渐入驻,小区距离陕师大陆港小学很近,租金尚有可期。
租售比鉴于目前现状,只能打6.5分。
【综述】
总体,融创时代奥城作为2021年春节后港务区首个面市项目。
我给出了总分75.5分的成绩。

小编有话:关于融创时代奥城的评测,除了融创时代奥城的楼盘本身的情况之外,不得不说一说2021年到目前为止的西安楼市现状和港务区的发展。
2021年春天,受预售政策和限价政策的影响,新房供应严重不足。
土拍方面,又有接连拍出高价地王,有的区域,甚至出现了新房价格和土拍楼面价的倒挂!
前有土拍拉高预期,后有新房缺货提升购买难度。造成了新房市场“万人摇”的出现和二手市场价格跳涨。
有人说,主要是高新曲江等热门区域二手房涨势凶猛。其实,现在一直在鄙视链中下游的东、西、北也出现了二手房跳涨的情况。
对此我们在此文中不过多赘述,后面会有文章详细分析。
对于港务区而言,从18年以前不太受市场认可,到19、20年被市场广泛接受,并且在铁一中、高新系、师大系的名校+落地之后,成为西安市场的弄潮儿,成为了西安楼市的一方热土。
今年由于十四运的召开,之前大热的绿城全运村今年基本没有新盘推出,其他的推货主力,也就是融创的港务区双子座、金地、中粮、华润等。
在主城区无房可买的情况下,相信港务区在今年相当长的一部分时间内,也将是酝酿“千人摇”的温床。
至于港务区的前景,自住基本没有问题,各种配套档次不低,规划和城建水平相比较主城其他区域优势明显。
对于投机而言,除了各种软文吹上天的牛逼规划,更应当关注的是以下三点:
第一,价格是否合适?
第二,产业和人口导入是否迅速?
第三,房子是否过剩?投机客是否过多?
不过,分析再多,似乎决定权也不在购房者手里。
当下的市场,能买到相对便宜,品质相对有保障的品牌新房,无论如何,也比购入目前略有成魔迹象的二手房靠谱得多!更何况融创一如既往的一次开盘放货800多套!
这就是我对它的看法。
还是那句话,不保证观点正确,但务求观点明确。
我是今天的测评师,Z。
下面,就请各位看官打出你们的分数,在留言区发表对于他的看法!
私信可进交流群!
-
- 谁执牛耳——公司控制权浅析
-
2025-09-19 18:47:06
-
- 全上海最受关注的10家博物馆,你都去过吗?
-
2025-09-19 18:44:51
-
- 超实用6个撩妹套路,老司机教你撩妹套路女生
-
2025-09-19 18:42:36
-
- 论无权代理情形下代理人责任承担
-
2025-09-19 18:40:21
-
- 复句与关联词语用法学练大全 第28单元假设复句的关联词语用法
-
2025-09-19 18:38:06
-
- 澳洲严查黑工,老板也遭殃!移民局凌晨突袭抓黑工
-
2025-09-19 18:35:51
-
- 青丘狐传说丨古力娜扎、小彩旗、金晨、陈瑶四大美女主角,你爱谁
-
2025-09-19 18:33:36
-
- 2014年,一家4口在华山跳崖,只留下出生58天女儿,究竟因为什么
-
2025-09-19 18:31:21
-
- 世界上最难学的语言(世界10大难学语言)
-
2025-09-19 15:23:08
-
- 世界上最辣的辣椒TOP10,最后一个曾经辣死过人!
-
2025-09-19 15:21:03
-
- 香港十大富豪排行最新版,李嘉诚依旧稳住榜首之位!
-
2025-09-19 15:18:59
-
- 世界十大猫粮品牌(世界排名猫粮)
-
2025-09-19 15:16:55
-
- 世界上最大的猫头鹰,毛腿渔鸮or雕鸮(猫头鹰老大是谁)
-
2025-09-19 15:14:51
-
- 中国十大合并城市排名(中国最应该合并的三个城市)
-
2025-09-19 15:12:46
-
- 世界上寿命最长10大植物,波西多尼亚海草可活10万年!
-
2025-09-19 15:10:42
-
- 中国十大现代名城(中国现代十大书法家排名榜)
-
2025-09-19 15:08:38
-
- 中国十大销售手机品牌(全国手机销售排名前十名的品牌)
-
2025-09-19 15:06:34
-
- 中国十大禁菜排行榜,血腥程度难以想象
-
2025-09-19 15:04:30
-
- 十位最具影响力的中国导演排名,第一名我服!
-
2025-09-18 22:27:40
-
- 韩国流行“橡果热”,连松鼠都没有食物过冬了……
-
2025-09-18 22:25:25



中国十大黑恶县城(中国十大黑恶县城有哪些)
【石井四郎的女儿还在吗】石井四郎女儿石井春海怎么死的?
元世祖忽必烈,一个在中国历史上留下了深刻印象的人物
世界上最贵的香烟,好彩香烟(60万一盒)
中国最严格的监狱(中国最严监狱排名)
中国最穷的十大城市,排名第一的是贵阳
中国十大超穷省会城市排行榜 贵阳第一
十大抗日小说排行榜 让你热血澎湃的经典之作
中国最狠十大监狱(女子监狱怎么解决需要)
中国“素质最差”三个省排行,国内“素质最差”省有哪些