4套最美农村别墅实拍,30万内建好适合老百姓,第3套最便宜?
4套最美农村别墅实拍,30万内建好适合老百姓,第3套最便宜?
现在回农村盖别墅真的很方便,如果经济允许可以找专业设计师量身定制属于自己的小别墅,如果没那个条件,可以在网上多看看,总能找到一套家人满意的户型。
像今天,小编给大家带来4套按我们的户型建房的案例,哪套建得既好看又实惠呢,赶紧看看吧!
第1套:云南曾先生,30万自建
30万建成的效果和原效果图相比是不是毫不逊色,毕竟这可是咱们的当家户型!全国建成案例不下白套。

参考户型:



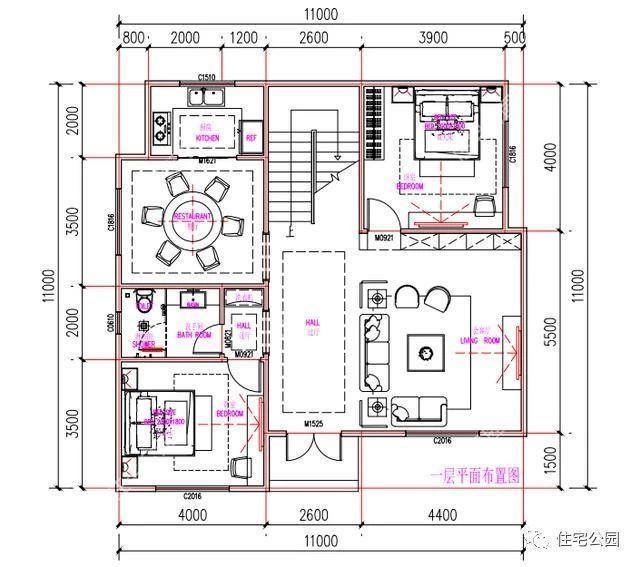
第2套:河北沈先生,29万自建
这套跟前两套不同的是,这是一栋轻钢别墅!新型轻钢别墅,抗震、保温,高效,换成你,会建吗?

参考户型:



外墙安装欧松板。

填充岩棉。

外墙美化,安装水泥纤维挂板。

这栋轻钢别墅建筑面积230平,造价29万,水电包工不包料,运费跟基础不含,你觉得如何?

第3套:湖南李先生,30万自建
这套房屋参考的也是我们一套非常经典的欧式别墅,外观时尚,布局实用,非常适合咱们老百姓自建!

参考户型:




房屋建筑面积420平,造价30万,毛胚花费26.8万,外墙粉刷花费1.5万。
基础钢筋花费3750元,河沙460元一拖拉机,水泥采用425水泥,价格425元,填泥土30元一车,花费1.08万。施工队158元一平,包括木工加造型、泥水工、切砖、上材料、浇混凝土等。

第4套:湖南戴先生,30万自建
经典的欧式别墅,自身典雅高贵的气质深入人心,成了农村别墅中最广泛使用的风格。

参考户型:




安装好门窗,开始室内的装修工作。
总造价60万,主体花费30万。主体包工不包料238元每平,人工费14万元;钢筋花费7万元左右,地坪花费6万。红砖买了8万匹,0.32元一匹,后来再买4.5万匹红砖,0.45元一匹 ,红砖花费4.58万元。

看完之后你觉得哪栋建得最值呢?
-
- 曹魏最悲惨的皇后,不恃宠而骄,却死状凄惨,以糠塞口,不是甄宓
-
2025-09-26 05:55:30
-
- 取错名字毁一生,看到最后一个笑劈叉了!哈哈哈哈哈哈哈哈哈哈哈哈哈哈哈
-
2025-09-26 05:53:25
-
- 甜而不腻的粉色系穿搭,今年最全粉色系单品系列,自带甜美少女感
-
2025-09-26 05:51:21
-
- 盘点娱乐圈毕业于上戏最有出息的10大男星: 最后一位因丑闻难翻身
-
2025-09-26 05:49:17
-
- “死侍”的漂亮老婆!曾入选全球最美女性,这位女星真的很惊艳!
-
2025-09-26 05:47:13
-
- 袁成杰带陈芊芊参观儿时童年地被嫌弃,失望至极最后态度暴露教养
-
2025-09-26 05:45:09
-
- 中国人为啥不相信保险?因为保险公司每一次拒赔都是对行业的打击
-
2025-09-25 21:53:43
-
- 藏身珠江畔校园的豫章书院
-
2025-09-25 21:51:28
-
- 《庆余年3》皇子团摆脱丑闻回归?金晨被踢出,敖瑞鹏接演言冰云
-
2025-09-25 21:49:14
-
- 潜入生活之海,禹风《梦潜》新书分享会举行
-
2025-09-25 21:46:59
-
- 王祖蓝辞职TVB的一举两得:报答了曾志伟的恩义,也证明了自己
-
2025-09-25 21:44:44
-
- 李清照《醉花阴·薄雾浓云愁永昼》:在愁绪中品味生命的细腻
-
2025-09-25 21:42:29
-
- 下岗众生相(5):是谁杀死那个石家庄人?是谁让他冰冷的离去?
-
2025-09-25 21:40:14
-
- 惊魂!四川高速油罐车惨遭爆燃,官方最新通报
-
2025-09-25 21:37:59
-
- “津西钢铁”用真诚回报社会——记爱心企业河北津西钢铁集团股份有限公司
-
2025-09-25 21:35:44
-
- 千万别捅马蜂窝!马蜂生猛,驯服了却能挣钱
-
2025-09-25 21:33:29
-
- 蒙古帝国华筝公主的金刀驸马——小鲜肉孛秃
-
2025-09-25 21:31:14
-
- 【双非好大学】中国民航大学的优势专业及就业前景分析
-
2025-09-25 21:28:59
-
- 首期30位英语教师已参加丨浙江大学管理学院湄潭教育发展基金
-
2025-09-25 21:26:44
-
- 世界地图变迁史—欧洲瑞典
-
2025-09-25 21:24:30



中国十大黑恶县城(中国十大黑恶县城有哪些)
【石井四郎的女儿还在吗】石井四郎女儿石井春海怎么死的?
元世祖忽必烈,一个在中国历史上留下了深刻印象的人物
世界上最贵的香烟,好彩香烟(60万一盒)
中国最严格的监狱(中国最严监狱排名)
中国最穷的十大城市,排名第一的是贵阳
中国十大超穷省会城市排行榜 贵阳第一
十大抗日小说排行榜 让你热血澎湃的经典之作
中国最狠十大监狱(女子监狱怎么解决需要)
中国“素质最差”三个省排行,国内“素质最差”省有哪些