越城区人民医院&绍兴第三医院效果图来了!附近小区又迎重大利好
越城区人民医院&绍兴第三医院效果图来了!附近小区又迎重大利好
近日,绍兴市自然资源和规划局越城分局、柯桥分局分别发布越城区人民医院新院区、绍兴第三医院易地新建建设工程方案规划公示。
01越城区人民医院

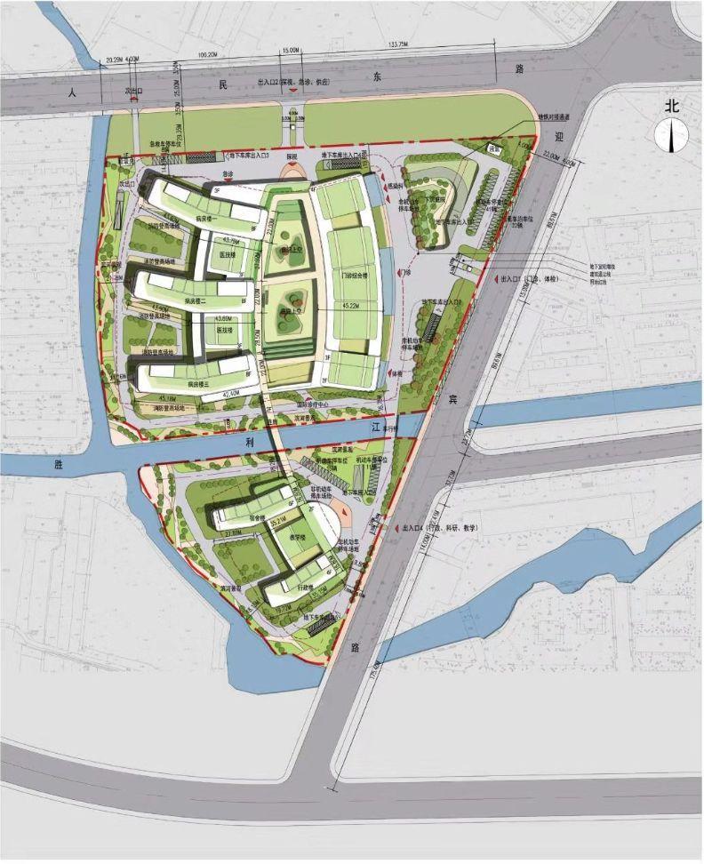
越城区人民医院新院区拟在人民东路南侧,迎宾路西侧,规划用地面积68557㎡,地上总建筑面积95650㎡,地下总建筑面积35050㎡,建筑总高度34.5米,容积率1.4。

越城区人民医院新院区效果图

越城区人民医院新院区平面图
新院区分南、北两区,中间隔平水东江(胜利江)。其中,北区为门急诊大楼、病房楼和医技楼,南区为行政楼、教学楼和宿舍楼;并配套建设桥梁、景观绿化等场外工程。

周边有东湖别墅小区、美龙家园等住宅小区。
据了解,越城区人民医院建设工程总投资约11.9亿元,将按照三级甲等综合性医院标准立,按800张床位规模建设,预计到2025年12月投入使用。
02绍兴第三医院

绍兴第三医院易地新建项目拟在钱陶公路以北,规划蜀阜路以西,总用地面积16648.6㎡,总建筑面积10789.6㎡,占地面积3329.4㎡,建筑总高度27.3米,容积率0.65。

绍兴第三医院新址效果图

绍兴第三医院新址平面图
绍兴第三医院由3幢主体建筑组成,分别为6层门诊综合楼、3层病房楼以及4层卫校教学楼,并配建配电室和后勤用房、绿化景观和195个机动车车位。

新址周边有龙湖原著、东周小区、聚贤花苑、西周嘉苑、都市阳光花园、中嘉银都水岸等住宅区;以及雍荣华府(公元2025)、华著小区(元垄中南华著)等在售新房项目。
据了解,绍兴第三医院创建于1958年,作为全市唯一一家公立皮肤病专科医院,也是医保双定点单位。
根据总体规划,今年绍兴全市将推进10个重点医疗卫生项目建设。除了刚刚公示的越城区人民医院,还有以下几个重点建设项目,也正在紧锣密鼓的进行中。
市本级
01绍兴市人民医院总院

绍兴市人民医院新院区,按三级甲等综合性医院建设标准及“一院两区”管理模式,计划总投资约25亿元,占地约180余亩,建筑面积约26万平方米,规划床位1500张。
02绍兴市中医院扩建工程

目前,绍兴市中医院改扩建工程已正式启动。项目在原址上进行“东拓西进北建”,总投资约12.5亿元,计划于2025年底建成投入使用。改扩建后,总床位将达1000张,大大改善医院门诊拥挤和病房紧缺的状况。
03绍兴市妇幼保健院(绍兴市儿童医院)

绍兴市妇幼保健院(绍兴市儿童医院)建设项目拟选址于越城区凤林西路以南,袍中路以东,用地面积85933平方米,拟建设规模20300平方米,其中地下建筑面积约74000平方米,核定床位1000张。
各区、县(市)
01诸暨市妇幼保健院

新建诸暨市妇保院位于诸暨市重要地理位置,有着优越的配套资源条件,是诸暨市总体规划的核心区块。
02上虞市人民医院科技综合楼

今年还将力争完成上虞人民医院科技综合楼工程主体到十楼。该项目总建筑面积55720 平方米,其中地上面积36050平方米,地下面积19670平方米。科技综合楼主要由地上和地下室两部分组成,地上主楼设计十六层(含技术层一层),地下室设两层。
03上虞中医医院(上虞城南医用综合中心

今年将完成上虞中医医院(上虞城南医用综合中心)工程主体结顶。该项目东至大元路(毗邻百丰公路),南至梁湖大道,西至河东路,北至学海路,用地面积6.21万平方米。其中一期约9.5万平方米,二期约4.8万平方米,总床位800床,总停车位850个。
04新昌县人民医院综合大楼

今年将完成新昌县人民医院提升工程(一期)综合大楼建设工程主体结顶。地点位于新昌县南明街道鼓山中路117号(新昌县人民医院内原十七病区及食堂区域)。
05嵊州市崇仁镇中心卫生院

今年将完成嵊州市崇仁镇中心卫生院异地新建项目工程主体结顶。
今年还将完成柯桥区华舍街道社区卫生服务中心扩建改造工程。
房子升值,离不开配套。除了学校、商业综合体,医院也是重要配套之一。
这十大重点医疗卫生项目,总投资80亿元,能够更好地满足绍兴人对优质医疗资源的需求,而最先受益的一定是住在周边的业主们。
透明售房网绍兴站综合绍兴发布
-
- 刷子李是谁_刷子李简介
-
2025-10-10 19:17:36
-
- 拖把更名器使用教程(多特图文教程)
-
2025-10-10 19:15:34
-
- 安迪妈妈黄圣依vs她的妈妈,安迪的奶奶vs她的奶奶,孩子反应瞩目
-
2025-10-10 19:13:31
-
- 贵州贵阳建工设计院简历(贵州中建建筑科研设计院)
-
2025-10-10 19:11:28
-
- 薛宝钗饰演者张莉,27岁弃名利独闯加拿大成富婆,今55岁未婚独居
-
2025-10-10 19:09:25
-
- 不用跑车管所!云南17项车驾管业务,家门口派出所就能办!
-
2025-10-10 19:07:22
-
- 世界杯半决赛法国vs比利时,这里有你需要的一切信息!
-
2025-10-10 19:05:19
-
- 长沙红星美凯龙楼盘地图(红星美凯龙长沙岳麓TOP)
-
2025-10-10 19:03:16
-
- 鸡泽县属于哪个市(河北鸡泽县属于哪个市)
-
2025-10-10 19:01:13
-
- 香港 3000 万投资移民即将开闸,过往曾开启港股两段大反弹,持牌机构已跃跃欲
-
2025-10-10 18:59:10
-
- 都市异能类小说推荐
-
2025-10-10 18:57:07
-
- 厕所门对着床好吗(5个好看且功能性强的化解方案)
-
2025-10-10 18:40:45
-
- 广州“最大烂尾楼”澳洲山庄重建再启动,业主盼出台更详细方案
-
2025-10-10 18:38:43
-
- 觅渡教育集团“乐渡童年Ⅲ”音乐盛典隆重举行
-
2025-10-10 18:36:40
-
- 岳麓区是哪个省哪个市(岳麓区在长沙哪个位置)
-
2025-10-10 18:34:37
-
- 价格飙涨 7 倍,比汽油还贵!印度爆发“西红柿危机”:7 天两农民遭谋杀,商家
-
2025-10-10 18:32:34
-
- 翁牛特旗属于哪个市(翁牛特旗属于县还是区)
-
2025-10-10 18:30:31
-
- 《琅琊榜》的蒙大统领在上海参加了志愿者当大白
-
2025-10-10 18:28:28
-
- 杨过为何送将玄铁剑送出?是郭靖主动要的,你看耶律齐是怎么死的
-
2025-10-10 18:26:26
-
- 是韩剧王子也是韩剧杀人魔,一起来认识金材昱!
-
2025-10-10 18:24:23



窈窕淑女,君子好逑 人格魅力的赞美
山川可以组什么四字词语
妯娌读什么
汤晶媚和谷智鑫是什么关系
知而不言言而不尽是什么意思
什么叫塑料姐妹
五体投地是什么肖
普鲁士现在是什么国家
物是人非事事休,是什么意思啊
山字头带个兔字是什么字