路桥施工最常见的大临工程-钢便桥经典设计与施工方法
路桥施工最常见的大临工程-钢便桥经典设计与施工方法
作者丨桥隧施工技术

钢便桥设计需要考虑荷载,河床地质,桥面宽度,护栏类型,洪水位,两端桥接线纵坡,河道冲刷线,山洪漂浮物冲撞等因素。施工过程主要考虑低水位施工,墩柱基础采用桩基础或者承台基础,吊车站位,墩柱防腐,桥梁沉降变形观测等。
一、工程概况
本座钢便桥东侧连接既有道路X102(施工进口),西侧连接***主线右侧施工场地,跨越***支流***。具有解决施工材料运输、机械设备运输等功能,可通行10m³砼搅拌车、25t汽车吊等。考虑到实际施工需要,按总重100t货车的行车要求跨越60m长河沟,钢便桥桥面宽度6m。
设计钢便桥全长63m,跨径组合为:3+12+3+12+3+12+3+12+3m,具体设计参数及边界条件如下:
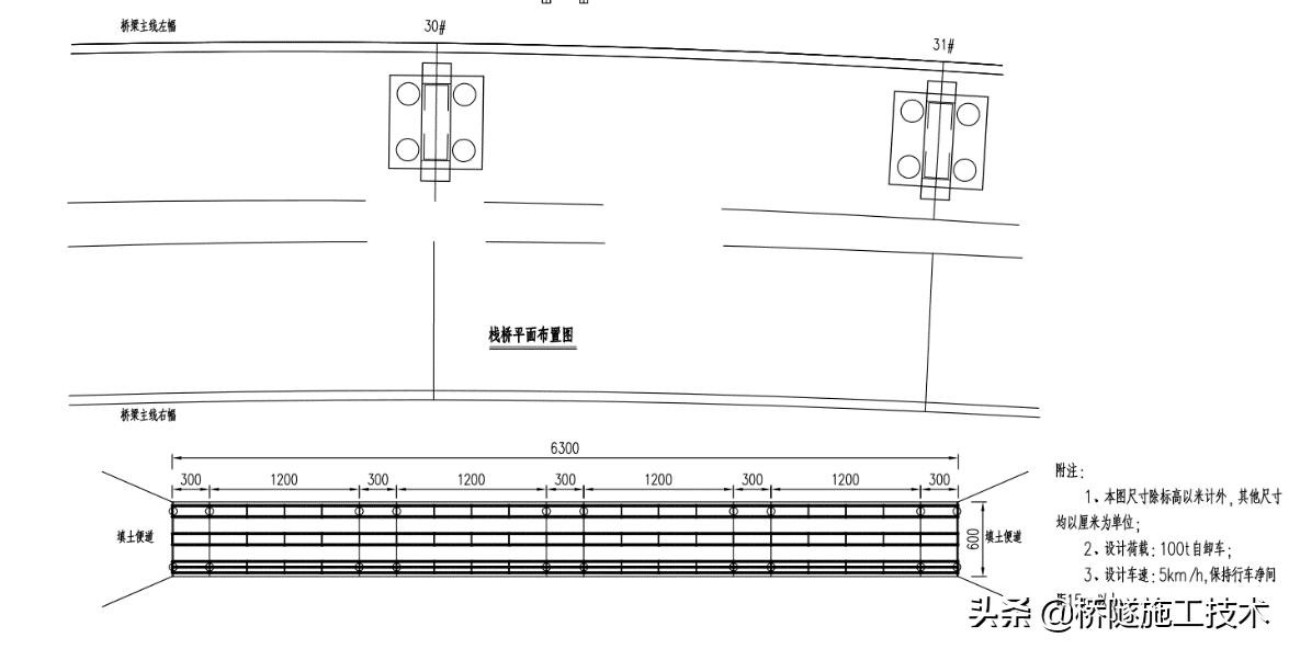
1、栈桥设计暂定总长63m,桥面宽度6m;
2、栈桥桥面设计标高:+111.0m;
3、栈桥设计荷载:
100t自卸车通行,前后车净距保持15m以上;
轮距:1.8m;前四轮着地面积:0.30m×0.20m,后四轮着地面积:0.60m×0.20m。
轴距:1.35m +4.7m+1.8m。前两轴轴轴重:2×175kN,后两轴轴重:2×325kN。

100t自卸车轴重及尺寸图(单位:m)
4、设计洪水位:+108.8m,设计最大流速1.5m/s。
5、栈桥设计风速
正常使用期:6级风,14m/s;
设计最大风速:8级风,20.7m/s。
6、设计使用年限:3年
7、设计行车速度:15km/h
8、地质条件
地质分布从上至下依次为:粉质黏土、卵石、强风化粉砂质板岩及中风化粉砂质板岩。详细地质资料参照《两阶段施工图设计文件》中工程地质纵断面图。

2#钢便桥位置

便桥平面示意图


2#钢栈桥总体布置图
二、结构布置
2.1 钢便桥材料
栈桥桩基础考虑采用∅610×10mm 规格螺旋双排钢管桩,钢便桥支承柱为螺旋双排Φ610mm钢管桩,材料为Q235,壁厚δ=10mm。间距(中距):每一组桩群桩与桩纵向间距3m、横向间距4.5m,桩群与桩群之间的间距为12m。钢管桩纵、横向均采用2[20槽钢于桩顶间连接,钢管桩间采用[120槽钢按剪力撑焊接,增强稳定性。桩顶采用割开槽口的型式,2根I45a工字钢直接卡入槽口内。2根I45a工字钢的长度为6m,便桥纵梁采用321型军用贝雷架拼装而成,贝雷梁每节长度3m,高度1.5m,横向间距150cm;分配梁采用I22a工字钢,横梁在纵桥向按 83cm,67cm 错位交叉布置。
钢便桥自下而上结构依次为:
Φ610mm钢管桩(基础)→钢管桩纵、横向2[20槽钢→桩间[20槽钢剪力撑加固→2根I45a工字钢横梁→321型军用贝雷架纵梁→桥面横向I22a工字钢→桥面板→新型护栏。

栈桥纵向连接系(一)

栈桥纵向连接系(二)

栈桥断面布置图

便桥纵断面示意图
三、便桥施工
钢便桥桥头桥尾采用桩基础轻型桥台,跨中采用每处4根钢管支撑柱作为中支点,钢栈桥主桁梁采用 321 型标准贝雷梁拼装,贝雷梁每节长 3m,高 1.5m。构件材料为 16Mn,每片贝雷梁重 270kg;竖向支撑架为 90 型,竖向支撑架用于两片相邻桁梁端部,在桁梁每端均设置;支撑架采用撑架螺栓及螺母与桁梁进行连接;主栈桥分配梁采用 I22a 热轧普通工字钢,横梁下部与桁梁上弦杆采用夹具或卡板固定,上部与专用桥面板焊接固定,横梁在纵桥向按 83cm,67cm 错位交叉布置,对应钢桁梁的竖杆或斜杆交叉点处设置;相邻桁梁的连接采用桁梁销,桁梁销上销锥端有一小孔,供插保险销用,另一端面上有一凹槽,其方向与保险销孔相同,在安装时如看不见销孔,可借导向槽方向以定销孔方向,有助顺利插入保险销。桁梁销材料为 30CrMnSi,直径为 49.5mm,重 3kg;支撑架螺栓用于固定支撑架与桁梁之间的连接,与支撑架配套使用,每根支撑架匹配四根支撑架螺栓;主栈桥桥面板面板采用 8mm 厚花纹钢板,主肋(小纵梁)为 I12.6 规格;钢栈桥桩顶承重梁用于栈桥纵向贝雷梁安放,材料采用 2I45a 型号 Q235B 热轧普通工字钢;栈桥桩基础考虑采用∅610×10mm 规格螺旋双排钢管桩;栈桥双排桩桩间平联采用 2[20a 槽钢连接,剪刀撑采用[20a 槽钢。
3.1桥台、墩柱施工
钢便桥端支点采用桩基轻型桥台并顺接便道,钢管桩,两边桥台及其他基础均采用4根Φ610x10钢管桩。
3.2钢管安装
钢管桩采用直径610mm,壁厚10mm的无缝钢管;栈桥采用汽车吊"钓鱼法"由岸边开始逐跨向前推进施工;施工钢便桥钢管桩采用55t汽车吊吊装振动锤安装,停锤深度标准以贯入度控制为主入土深度作为校核。根据设计验算,入土深度不小于2米。钢管桩与采用钢筋混凝土进行固结,增加板凳桩稳定性。钢管中点控制采用全站仪;垂直度控制采用吊锤。沉桩过程中,钢管桩插打的精度要求:平面偏差≤10cm,垂直度偏差≤1%;沉桩过程中,若遇到河床有抛石等特殊情况导致钢管桩无法打入时,可适当调整跨径;钢管接长时,应采取可靠措施确保对接的管节顺直,接口紧密。


吊车站位图
接桩焊缝要求:
1)钢管柱若接长,则应保持柱的轴线在同一条直线上,垂直度偏差≤1%;
2)焊接时应采用多层焊接,焊完每层后应及时清除焊渣,且各层的焊缝接头应该错开;
3)遇大风时,应采取必要的挡风施以确保施工人员安全和工质量,必要时应停止作业;
4)钢管柱采用对称焊接,防止因焊缝收缩而产生附加内应力;
5)每个接头焊接完毕并自然冷却后方可继续锤击沉桩。
焊接施工的要求:
1)在工厂或工地焊接工作之前,对首次使用的钢材和焊接材料应进行焊接工艺评定。焊接工艺评定应符合本规范附录H的规定。
2)焊接工艺应根据焊接工艺评定报告编制,施焊时应严格遵守焊接工艺,不得随意改变焊接参数。焊接材料应根据焊接工艺评定确定,焊剂、焊条应按产品说明书烘干使用,对储存期较长的焊接材料,使用前应重新按标准检验。CO2气体保护焊的气体纯度应大于99 .5%。
3)焊接工作宜在室内进行,焊接环境的相对湿度应小于80%;焊接环境的温度,对低合金高强度结构钢应不低于5"C,普通碳素结构钢应不低于0C。主要钢构件应在组装后24h内焊接。
4)钢构件在露天焊接时,除应满足本条第3款的要求外,必须采取防风和防雨措施;主要钢构件应在组装后12h 内焊接,当钢构件的待焊部位结露或被雨淋后,应采取相应措施去除水分和浮锈。
5)施焊前应按规范第8.4.2 条的规定,清除焊接区的有害物。施焊时母材的非焊接部位严禁焊接引弧,焊接后应及时清除熔渣及飞溅物。多层焊接时宜连续施焊,且应控制层间温度,每一层焊缝焊完后应及时清理检查,应在清除药皮、熔渣、溢流和其他缺陷后,再焊下一层。
6)焊前预热温度应通过焊接性试验和焊接工艺评定确定;预热范围宜为焊缝每侧100mm以上,且宜在距焊缝30~50mm范围内测温。
焊缝检测指标:
1.外观,尺寸和形状要符合相关的技术标准和设计图样的规定;
2.焊缝无表面裂纹,未焊透、未溶合、气孔、弧坑,未填满以及肉眼可见的渣,焊缝两侧的焊以及飞溅物必须清除;
3.焊缝和母材要平滑过渡;
4.①使用标准抗拉强度下限值大于等于540兆帕材料制作的压力容器,奥氏体不钢压力容器,低温压力容器等焊缝不准咬边。
②其他的边深度不得大于0.5毫米,且连续咬边不得大于100毫米,焊缝咬边总长不得大于缝长度的10%。
3.3横梁、纵梁、分配梁施工
3.3.1横梁施工
横梁采用I45a双拼工字钢,工字钢双拼后每间隔2m在拼接位置进行焊接(顶部、底部均焊接),焊接长度不低于15cm;横梁长度设计6m,横梁须在地面双拼加固后整体吊装至钢管。钢管顶部设置槽口锁固横梁,槽口宽度30cm,深度20cm。

主梁槽口示意图
3.3.2纵梁施工
1) 整体布置:本钢便桥纵梁采用321型标准贝雷片拼装,双排贝雷片采用配套45花架进行连接,横断面位置设计3组贝雷片,每组贝雷片中心间距135cm,贝雷片由横梁中心往两侧均分布置。
2) 纵梁组装:每组贝雷片分10段组装,由县道往大洲源依次为3+12+3+12+3+12+3+12+3m。贝雷片须在地面进行每段组装,每组装一段后进行架设,依次由北侧往南侧架设,每完成一段架设后设置横向连接件,待3组贝雷片架设完成后须对花架的螺栓以及贝雷片的插销进行检查。
3.3.3分配梁施工
1) 整体布置:本钢便桥分配梁采用单根6m长I22a工字钢横向布置,工字钢横向中心间距83cm、67cm交叉循环布置。
2)分配梁安装:将单根12m长的I22a工字钢原材切成2根6m长,横向铺于纵梁上,中心间距按83cm、67cm交叉循环布置控制,工字钢与贝雷片间采用U型卡环连接锁定,每根分配梁设置3个U型卡环。
3.4桥面施工
3.4.1桥面施工
桥面采用8mm厚花纹钢板铺装,主肋(小纵梁)为 I12.6 规格;单块钢板宽度2m长度6m,单块桥面板中间夹具采用2个ZG270-500,单块桥面板端头夹具采用2个ZG270-500,钢板与分配梁采用焊接连接,单块钢板横桥方向左右各设置一道15cm宽焊缝,顺桥方向每3m进行一次焊接。


桥面板范例图
3.4.2护栏施工
钢便桥一共设置2道钢护栏,每道护栏设置两层扶手。两道均为行车防落护栏。
1)护栏顺桥向每1.5m设置一根1.15m高立杆,立杆采用Φ60钢管,每30cm涂刷红白相间油漆。
2)每道护栏设置两层扶手,护手采用1512型护栏片,护栏片涂刷红白相间油漆。

护栏成品范例图
3.4桥台接线
本钢便桥桥台直接填土,桥台处采用板凳桩形式,端头衔接段采用挡土板,防止衔接段道路基础脱空,具体如下图

桥台接线图
3.5质量验收标准
⑴质量验收应优先以设计院图纸、说明书等技术文件为准,图纸上技术要求不详的,参照有关规范、验标执行。
⑵桁架及纵横梁中心线对定位轴线位移≤5mm。
⑶ 桁架侧向弯曲≤h/250,且≤15mm 。
⑷ 桁架及纵横梁两端支撑点标高偏差土4mm。
⑸ 水平支撑檁条间距偏差土5mm。
继续总结 钢便桥受力验算
作者:桥隧施工技术;公路工程一线10年总工,死磕技术,吐血分享桥隧技术干货。
-
- 豆瓣评分8.1!电影《奇异博士》荣获第89届奥斯卡金像奖
-
2025-10-19 08:46:09
-
- 广西贵港市基本情况(广西贵港市概况)
-
2025-10-19 08:43:54
-
- 广州千年以上的古村(原来广州竟有5个极美的古村落)
-
2025-10-19 08:41:39
-
- 广东白切鹅的正宗做法(广东四大名鹅及八大鹅肉作法)
-
2025-10-19 08:39:24
-
- 自驾三亚免费旅游路线推荐图(三亚10大风景最美自驾线路)
-
2025-10-19 08:37:09
-
- 越演越烈,穆里尼奥缘何拿队医艾娃开刀?
-
2025-10-19 08:34:54
-
- 中疾控:4月14日至20日,新发现本土重点关注变异株275例
-
2025-10-19 08:32:39
-
- 脸蛋削骨后屌丝变美女的明星
-
2025-10-19 07:22:16
-
- 特赦李在榕,韩国在下一盘大棋?
-
2025-10-19 07:20:01
-
- 八十年前的百团大战:八路军部队编制你了解多少?
-
2025-10-19 07:17:46
-
- 最新好看的战争电影前十名推荐(排行榜前10名的战争电影)
-
2025-10-19 07:15:31
-
- 俄罗斯重新整合前苏联(原苏联地区15个加盟国外又增7个国家)
-
2025-10-19 07:13:16
-
- 扒叔大爆料:谢娜张杰的料?邱泽靠唐嫣上位?小S被婆家看不起?钟楚曦全靠后
-
2025-10-19 07:11:01
-
- 北上广青年,精神不内耗生活指南
-
2025-10-19 07:08:46
-
- 宁夏职称考试网(宁夏人事考试网)
-
2025-10-19 07:06:31
-
- 人物志《权力的游戏》之艾丽娅.史塔克
-
2025-10-19 07:04:16
-
- 买顶配的理想,才送代驾司机
-
2025-10-19 07:02:01
-
- 科普:奶山羊产业发展现状及趋势分析!看看奶山羊值得养吗?
-
2025-10-19 05:36:10
-
- 苏州限购升级对房价的影响(苏州部分板块放开限购)
-
2025-10-19 05:33:55
-
- 贝昂声控风扇说明书(贝昂智能声控循环风扇)
-
2025-10-19 05:31:39



赵薇真实身份是日本人
男人喜欢亲你私下代表什么呢!
细讲男朋友是怎么做你的!
陈翔六点半球球被按在桌上的视频最突出的就是大胸
男生为什么会吃女生的小兔兔,小兔子被吃会觉得痛吗?
男朋友摸自己女朋友的肚子意味什么